×
 
 
 
 

13715 NW 21st St, Home For Sale

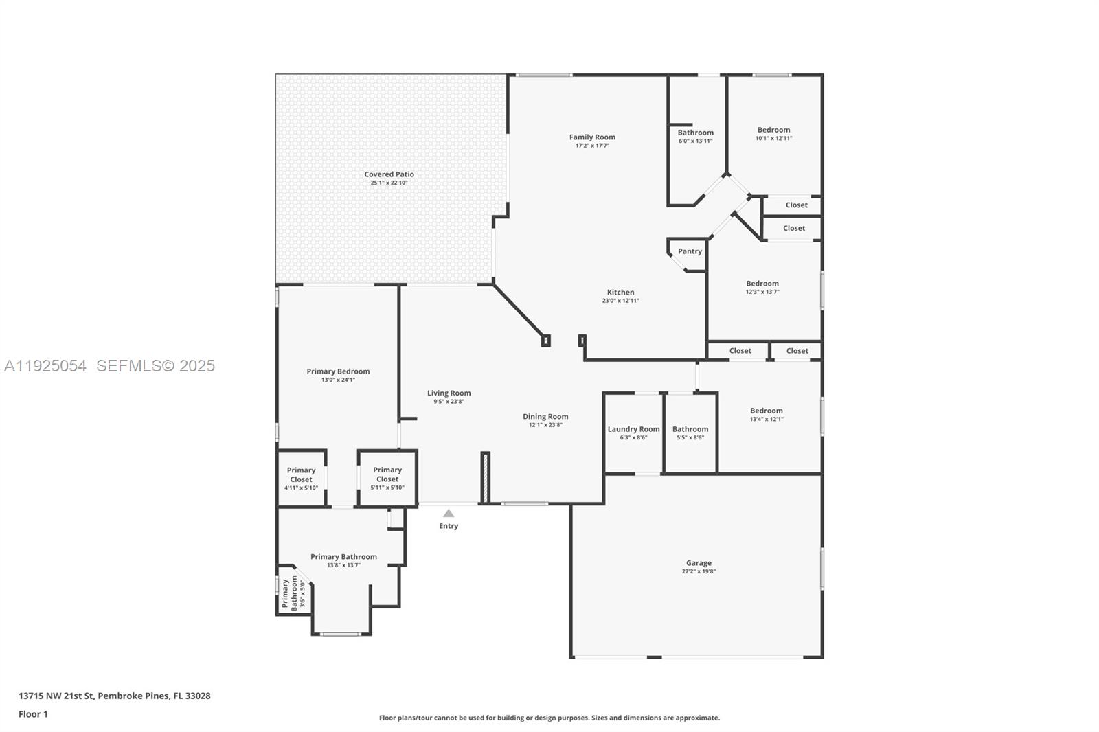
13715 NW 21st St, Pembroke Pines, FL 33028

Price: $885,000 | 3,358 s.f. | 4 Beds | 3 Baths

 

Property Information 13715 NW 21st St

Listing Price: $885,000
Price per Square Foot: $362.11/s.f.
Beds: 4
Baths: 3
Interior Space: 2,444 s.f. (227.1 m²)
Total Size: 3,358 s.f. (312.0 m²)
Lot Size: 8,474 s.f.
Taxes (2024): $9,652
Reference: A11925054
 

Your Contact

 
 
Send an E-mail

Office: (305) 726-0100
Mobile: (305) 726-0100

Have Questions?
 

Description of 13715 NW 21st St

Description of Home

YOUR WAIT IS OVER..... 4 Bedroom, 3 Bath, 3 Car Garage ***YALE MODEL - POOL HOME*** in Sought After EDGEWATER at PEMBROKE FALLS. Features an Open Floorplan, Kitchen w/Granite Countertops, Stainless Steel Appliances, Gas Range, Island/Serving Bar, Spacious Master Suite, His & Her's Walk-in Closets, Spa Style Bath, Dual Floating Vanities, Frameless Glass Shower Enclosure, Large Soaking Tub, Generous Guest Rooms, Freshly Painted Interior & Exterior, Modern LED Lighting ***NEW DESIGNER PLANK FLOORING THROUGHOUT*** Recently Renovated Expansive Covered Patio w/Retractable Awning ***REFRESHING POOL & SPA****NEW 2025 A/C***2023 W/H*** Accordion Shutters, Fenced Grounds, and Wide Multi-Car Driveway. Resort Style Club House: Heated Pool & Spa, Fitness Rooms, Tennis, Pickleball, Basketball, Ballroom, Children's Playgrounds & Four 24HR Manned Security Entrances. HOA Includes Cable, Internet & Alarm. Convenient to Shopping, Dining, Entertainment, Travel, TOP RATED SCHOOLS, and more. ***FIVE YEAR ROOF CERTIFICATION ATTACHED***

13715 NW 21st St Map and Directions

 

  Subscribe To Our Mailing List

Thank you! You should receive a confirmation email shortly.
 

 

The MLS data provided for the property above (MLS#A11925054) is provided courtesy of Willard Realty Team Corp. Source: Southeast Florida MLS. Data updated 12/5/2025. Information is deemed reliable but not guaranteed. Copyright © 2025. The listing data on this page comes in part from the Internet Data Exchange (IDX), a collaboration between the following REALTOR(R) associations in the South Florida Multiple Listing Service (MLS): Miami Realtor Association, Realtor Association of Greater Ft. Lauderdale and the South Broward Board of Realtors. All rights reserved. The information being provided is for consumers' personal, non-commercial use and may not be used for any purpose other than to identify prospective properties consumers may be interested in purchasing. Data is believed to be accurate, but is not warranted. Use of search facilities of data on the site, other than a consumer looking to purchase real estate, is prohibited. Federal law prohibits discrimination on the basis of race, color, religion, sex, handicap, familial status or national origin in the sale, rental or financing of housing.
 

Online Now

Have a Question? Live Chat

Condo & Home Directory

 
 

Brown Harris Stevens recommends that buyers, sellers and renters of real estate consult appropriate professionals for legal and other specialized advice.

Information presented on this website is believed to be accurate but is not warranted. Oral representations should not be considered valid. Information presented on this site (and in generated reports) may contain listings from both Brown Harris Stevens and other brokers who cooperate with Brown Harris Stevens. The content on this webpage (including drawings, photos, text and other materials) may have been provided by developers, third parties or others, and may have been extracted from a developer's marketing materials. Brown Harris Stevens does not warrant the accuracy of such information. You should consult your Purchase Agreement, Contract and Condominium Documents for accurate information. Brown Harris Stevens is an independent broker and has no developer affiliation, unless otherwise noted.

Contact Us

Email Address
First Name
Last Name