You are requesting information from Brown Harris Stevens on 21760 NW 3rd St Home
If you have any questions or any problem using this form, please call (305) 726-0100
This is a general information request form. Fill out your info and we'll get right back to you.
If you have any questions or any problem using this form, please call (305) 726-0100
								Price: $290,000 | 1,300 s.f. | 3 Beds | 2 Baths
                                    
                                    
						
                                
| Listing Price: | $290,000 | 
| Price per Square Foot: | $244.11/s.f. | 
| Beds: | 3 | 
| Baths: | 2 | 
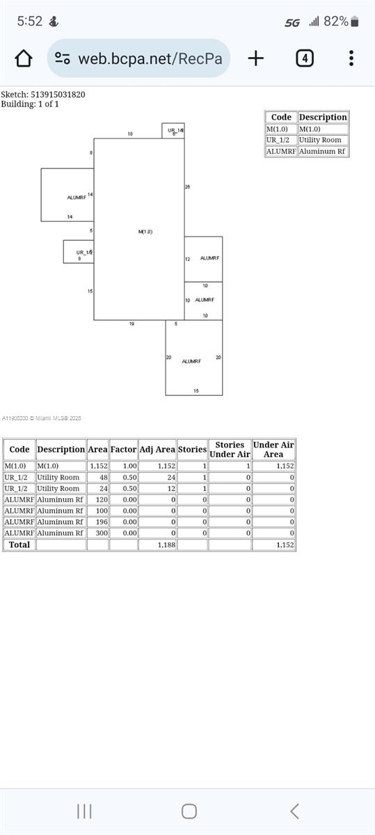
| Interior Space: | 1,188 s.f. (110.4 m²) | 
| Total Size: | 1,300 s.f. (120.8 m²) | 
| Monthly Maintenance Fee: | $103 | 
| Taxes (2024): | $4,051 | 
| Reference: | A11905330 | 
| See this property on BHSUSA.com | |
Tranquility sanctuary rare to find. Double wide Manufactured home with 3/2 plus an additional room that can be used at den a/o four bed a/o office a/o buyer choice/desire/need. Good news YOU OWN THE LAND. Refreshed updated renovation: new floor, kitchen, baths, appliances, etc. Freshly exterior paint. No rental restriction. Shed that is used as laundry room, but with space for your tool. Community include club house, gym lake, pool, tennis/basketball courts, play ground. Low HOA ($103/m)
The MLS data provided for the property above (MLS#A11905330) is provided courtesy of OD Realty Group Corp.. Source: Southeast Florida MLS. Data updated 11/4/2025. Information is deemed reliable but not guaranteed. Copyright © 2025. The listing data on this page comes in part from the Internet Data Exchange (IDX), a collaboration between the following REALTOR(R) associations in the South Florida Multiple Listing Service (MLS): Miami Realtor Association, Realtor Association of Greater Ft. Lauderdale and the South Broward Board of Realtors. All rights reserved. The information being provided is for consumers' personal, non-commercial use and may not be used for any purpose other than to identify prospective properties consumers may be interested in purchasing. Data is believed to be accurate, but is not warranted. Use of search facilities of data on the site, other than a consumer looking to purchase real estate, is prohibited. Federal law prohibits discrimination on the basis of race, color, religion, sex, handicap, familial status or national origin in the sale, rental or financing of housing.
Brown Harris Stevens recommends that buyers, sellers and renters of real estate consult appropriate professionals for legal and other specialized advice.
Information presented on this website is believed to be accurate but is not warranted. Oral representations should not be considered valid. Information presented on this site (and in generated reports) may contain listings from both Brown Harris Stevens and other brokers who cooperate with Brown Harris Stevens. The content on this webpage (including drawings, photos, text and other materials) may have been provided by developers, third parties or others, and may have been extracted from a developer's marketing materials. Brown Harris Stevens does not warrant the accuracy of such information. You should consult your Purchase Agreement, Contract and Condominium Documents for accurate information. Brown Harris Stevens is an independent broker and has no developer affiliation, unless otherwise noted.